Pomezia, il Comune vince un bando per la messa in sicurezza e l’adeguamento sismico del plesso scolastico P.V. Marone
La scuola secondaria di primo grado P.V. Marone si prepara ad un importante intervento di messa in sicurezza e adeguamento sismico. Il nostro Comune ha ottenuto un contributo dal Ministero dell’Istruzione, dell’Università e della Ricerca, per un importo complessivo di oltre 4 milioni di euro, di cui circa 400mila di cofinanziamento del Comune.
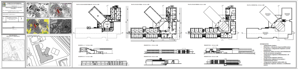
Il progetto prevede i seguenti interventi:
• adeguamento sismico;
• impermeabilizzazione in copertura e adeguamento impianto scariche atmosferiche;
• sostituzione infissi con nuovi anti-sfondamento ad alte prestazioni energetiche;
• adeguamento impianto di illuminazione e di emergenza;
• adeguamento impianto elettrico;
• realizzazione impianto di aerazione teatro;
• adeguamento impianto antincendio compresa l’installazione impianto citofonico e di diffusione sonora.
“Una serie di interventi importanti – ha spiegato l’Assessora Federica Castagnacci – che saranno effettuati nel rispetto della struttura esistente e che ci consentiranno di assicurare una maggiore sicurezza ai nostri studenti, alle loro famiglie e a chi lavora nel campo della formazione; i lavori porteranno anche un significativo contenimento dei consumi energetici con un basso impatto ambientale”.
“L’edilizia scolastica e la sicurezza dei plessi sono dei temi per noi prioritari – ha commentato il Sindaco Adriano Zuccalà – Stiamo recuperando anni di mancati interventi, proseguendo nella riqualificazione del patrimonio scolastico di competenza comunale; il bando del Miur che abbiamo vinto permette all’Ente di svolgere i lavori necessari di messa in sicurezza e adeguamento sismico della scuola P.V. Marone, pesando in minima parte sul bilancio comunale”. Lo rende noto lo staff del sindaco della Città di Pomezia




















