Con il Decreto del 30 dicembre 2021 (Contributi ai Comuni da destinare a investimenti in progetti di rigenerazione urbana) sono stati destinati al Comune di Frascati 4.500.000,00 euro: 2.400.000 per il recupero delle piscine comunali di Fausto Cecconi e 2.100.000 per l’ex Mattatoio di via Santovetti, dove verrà realizzato un teatro comunale.
«Si tratta di finanziamenti importanti per la città di Frascati. – dichiara la Sindaca Francesca Sbardella – Due aree da decenni sostanzialmente abbandonate possono, grazie a questo contributo, tornare a essere vitali per la nostra città. Da una parte, la piscina tanto cara ai frascatani, con un’offerta ampliata anche ad altre attività sportive, dall’altra un teatro comunale che arricchisce il patrimonio culturale della nostra città. Interventi puntuali, di rigenerazione, che uniti agli altri già finanziati, permetteranno alla nostra Frascati di offrire servizi di qualità ai cittadini e al territorio. Un grazie particolare all’Ufficio tecnico che, pur tra tante difficoltà, si dimostra sempre all’altezza delle sfide che affronta».
La richiesta di finanziamento è stata avanzata al Ministero dell’Interno dall’Ufficio Tecnico Comunale, il 4 giugno del 2021; gli interventi sono stati inseriti nel triennale delle opere pubbliche, il decreto del 30 dicembre ha legato il finanziamento al PNRR (Piano Nazionale di Ripresa e Resilienza), facendo riferimento alla missione 5 e al punto: “investimenti in progetti di rigenerazione urbana volti a ridurre situazioni di emarginazione e degrado sociale”.
Il progetto del centro sportivo a Fausto Cecconi prevede la possibilità di introdurre attività sportive miste come il tennis e il padel, oltre alla destinazione di polo natatorio per cui la struttura era nata, arricchita da una copertura apribile a seconda delle condizioni metereologiche.

Il recupero dell’edificio e delle sue aree esterne ad attività sportive, progettato dallo studio Nervi, rappresenta un tentativo di rigenerazione urbana di un’area abbandonata, qualificando il centro sportivo rinnovato come un elemento di cerniera tra il tessuto cittadino e il sistema del Parco Regionale dei Castelli Romani.

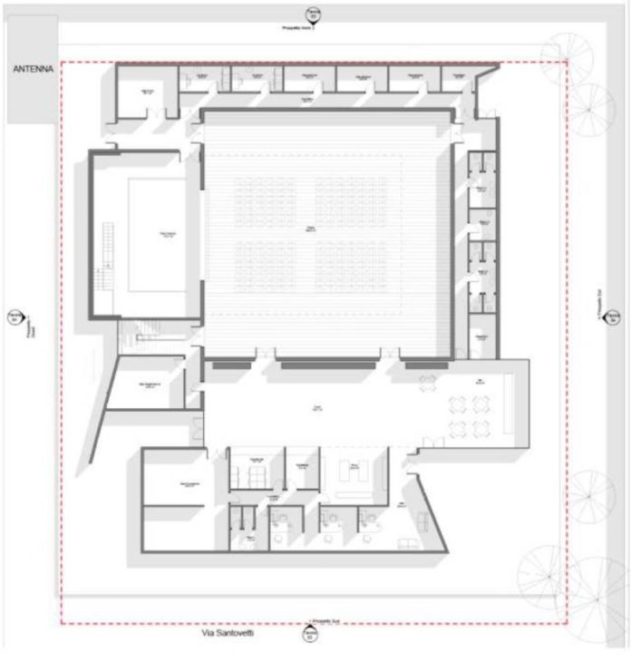
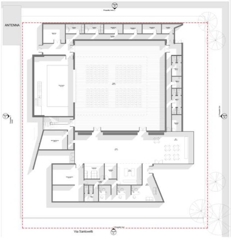
L’ex Mattatoio vedrà invece la realizzazione di un teatro comunale con circa 200 posti (provvisto di biglietteria e guardaroba), all’interno di una struttura polifunzionale con spazi destinati alla sala registrazione, alla sala prove, agli uffici e al punto ristoro.

«Ancora una volta l’Ufficio Tecnico Comunale risulta essere strategicamente fondamentale per la nostra comunità. – sottolinea l’Assessore ai Lavori Pubblici, Claudio Cerroni – Questi finanziamenti sono stati richiesti al Ministero dell’Interno in pieno periodo commissariale e con la Sindaca Sbardella abbiamo già indicato nel Programma Amministrativo che il nostro compito sarebbe stato quello di sostenere l’UTC e mettere in campo ogni azione per la realizzazione delle opere. Siamo sempre stati molto fiduciosi che l’Ing. Riccardo Basili (Funzionario apicale dei Lavori Pubblici) e la squadra che coordina avessero individuato e progettato le opere giuste per ottenere i finanziamenti richiesti».



















